Opis
Projekt rekuperacji aeroVent – indywidualne rozwiązanie dla Twojego domu
Zainwestuj w komfort i zdrowie swojej rodziny dzięki profesjonalnie zaprojektowanemu systemowi wentylacji mechanicznej z odzyskiem ciepła. Projekt rekuperacji aeroVent to klucz do efektywnej i bezawaryjnej instalacji, dostosowanej do unikalnych potrzeb Twojego budynku.
Co zawiera projekt rekuperacji aeroVent?
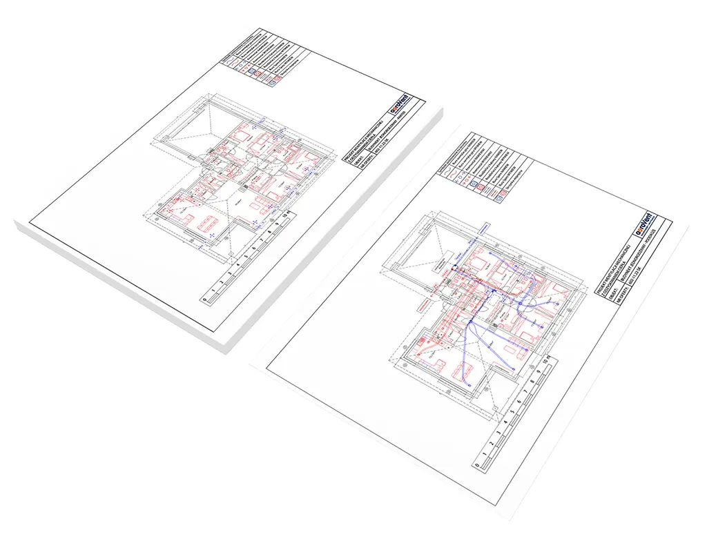
Bilans powietrza – precyzyjne obliczenia zapewniające optymalną wymianę powietrza w pomieszczeniach.
Dobór i lokalizacja centrali wentylacyjnej – wybór odpowiedniego rekuperatora oraz jego strategiczne umiejscowienie.
Układ kanałów wentylacyjnych – schemat rozmieszczenia przewodów dla efektywnej cyrkulacji powietrza.
Rozmieszczenie anemostatów – plan nawiewników i wywiewników dla równomiernego rozprowadzenia powietrza.
Lokalizacja czerpni i wyrzutni – optymalne położenie elementów zewnętrznych systemu.
Wskazanie pionów wentylacyjnych – szczególnie istotne w domach piętrowych.
Zestawienie materiałów – lista niezbędnych komponentów do realizacji instalacji.
Dlaczego warto wybrać projekt rekuperacji aeroVent?
Indywidualne podejście – każdy projekt dostosowujemy do specyfiki budynku i oczekiwań klienta.
Optymalizacja kosztów – precyzyjne planowanie pozwala na efektywne wykorzystanie zasobów i redukcję wydatków.
Komfort akustyczny – projektujemy systemy minimalizujące hałas, zapewniając ciszę w pomieszczeniach.
Efektywność energetyczna – nasze rozwiązania przyczyniają się do obniżenia kosztów eksploatacji.
Oferta specjalna
Standardowa cena projektu rekuperacji wynosi 99 zł. Jednak przy zakupach w sklepie aeroVent na kwotę minimum 1000 zł, koszt projektu zostanie odliczony od wartości zamówienia – w efekcie otrzymujesz go bezpłatnie.
Jak zamówić?
Przygotuj projekt swojego domu w formacie PDF.
Wypełnij formularz na stronie: Projekt i wycena rekuperacji lub wyślij dokumenty na adres: biuro@aerovent.pl.
- Opłać projekt. Proszę pamiętać, by w formularzu zamówienia projektu oraz w formularzu opłaty zamówienia podać te same dane kontaktowe.
Otrzymasz od nas indywidualny projekt oraz wstępną wycenę systemu rekuperacji.
Zaufaj doświadczeniu specjalistów aeroVent i zapewnij sobie sprawnie działający system wentylacji, który poprawi jakość powietrza w Twoim domu.






